نمونه طراحی ویلا مدرن
27
آوریل

نمونه طراحی ویلا – طراحی ویلا لینانماکی

طراحی ویلا لینانماکی ، نمونه ویلا مدرن

معمار راتسیو هوتانن سانتری لیپاتسی
موقعیت سومرنیمی، فنلاند
مصالح  چوب
مساحت ساخت 250m2
تاریخ ساخت  2002

پیوست طراحی ویلا :

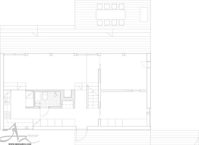
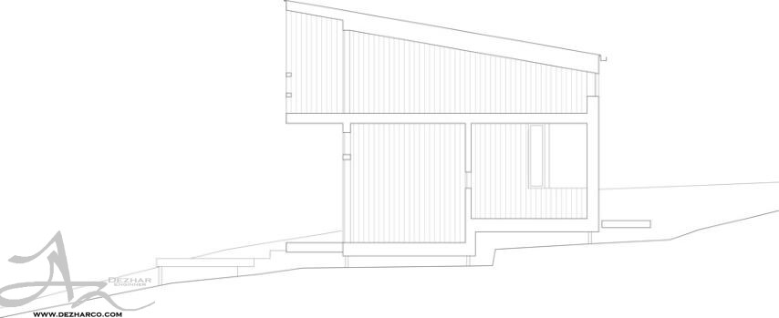
طراحی این ویلا بوسیله راتسیو هوتانن و سانتری لیپاتسی انجام گرفته و در این نمونه طراحی ویلا سعی بر آن بوده که با محیط اطراف ویلا هارمونی کامل داشته باشد و تمام مصالح آن از چوب استفاده شده است.در واقع طراحی ویلای چوبی مدرن در میان جنگل های فنلاند را شاهد هستیم. 

در این مجموعه عکس نمونه طراحی ویلا تمامی مراحل طراحی و ساخت ویلا و همچنین کانسپت ویلا نیز وجود دارد .

از مشاوره تا طراحی و اجرا ویلا ! با تیم مهندسین دژار تماس بگیرید.

تماس با ما

منبع : villanews

لطفا به این نوشته امتیاز دهید!
[کل: 0 میانگین: 0]